REER ULISSE UNC 安全光电保护装置
产品概述
ULISSE UNC是 REER 出品的分离式对射安全光电,由UNCE 发射端与UNCR 接收端组成,仅在搭配AU S3/AU S3M2/AU S-TWIN控制单元时,构成符合IEC 61496-1/2的TYPE 2 安全防护系统,用于全身侵入检测,不可用于手部 / 手臂防护。
适用设备:织机、装配线、自动化仓储、机器人区域、码垛系统。禁用场景:无配套控制单元、物体坠落 / 喷射风险、无法电气停机的设备。
技术参数
参数项 规格值
检测距离 0.8 ~ 6 m
最小检测物体 8 mm
响应时间 <8 ms
供电电压 24 Vdc ±20%
功耗 发射 0.7W;接收 0.4W
输出类型 NPN 100mA max(Light ON)
红外波长 880 nm
环境光抗扰 >10000 lx
防护等级 IP65
工作温度 0 ~ 55℃(无凝露、无结霜)
接头 M8 3 针
尺寸 15×25×63 mm
重量 40 g
状态指示灯
发射端(UNCE):黄灯常亮= 光束正常;熄灭 = 测试 / 无发射
接收端(UNCR):绿灯常亮= 保护区无障碍;熄灭 = 光束被遮挡
安全距离与安装定位
安全距离公式
S = 1600×(tb+tu+t1) + C
单光束:C=1200,光束高度750mm
双光束:C=850,光束高度400mm、900mm
安装要求
发射与接收严格对正,距离≤6m
远离强光源、反射面,避免误触发
多套系统并排 / 叠放需防互干扰,发射不对向其他接收

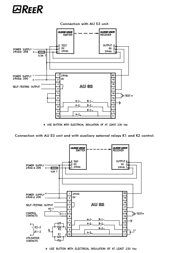
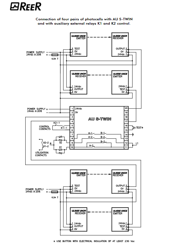
电气连接
接口:M8 3 针连接器,最长支持50m线缆(≥1mm²)
供电:必须使用PELV 24Vdc隔离电源
接线要点
3 号针连接金属外壳,需做接地或绝缘处理
电源线与动力线分离走线,控制单元接地
测试按钮绝缘≥230Vac
支持连接方式
单 / 双光束:AU S3 / AU S3M2
最多四光束:AU S-TWIN
机械安装与校准
安装方式:支架固定,发射与接收正对
校准:以接收端绿灯稳定常亮为准
环境:防凝露、防尘、防高温
检查与维护
日常点检:每班用8mm 不透明物体遮挡光束中心与边缘,确认接收绿灯熄灭、控制单元动作
维护:定期清洁镜头,禁止使用研磨剂、溶剂、酒精
故障排查:检查接线、对准状态、镜头清洁、供电电压
标签与订货
序列号:包含生产年 / 周 / 序列号
订货代码
发射 + 接收:1200302
发射 UNCE:1400302
接收 UNCR:1500302
关键问题与答案
问题 1:ULISSE UNC 在什么条件下才能作为安全设备使用?核心限制是什么?
答案:必须搭配 AU S3、AU S3M2 或 AU S-TWIN 控制单元,才能构成TYPE 2 安全系统;无控制单元时严禁作为人身安全防护装置。同时仅用于全身侵入检测,不可用于手 / 臂防护,且设备必须可立即电气停机。
问题 2:单光束与双光束的安全距离计算与光束高度分别是什么?
答案:
单光束:S=1600×(总响应时间 + 机器停机时间)+1200,光束高度750mm
双光束:S=1600×(总响应时间 + 机器停机时间)+850,光束高度400mm、900mm
问题 3:ULISSE UNC 的日常点检与维护要求是什么?故障优先排查哪些点?
答案:
点检:每班用8mm 不透明物体遮挡光束全区域,验证接收绿灯熄灭与停机功能
维护:定期清洁镜头,禁用腐蚀性溶剂
故障排查:①接线与供电 ②发射接收对准 ③镜头污染 ④反射光干扰 ⑤控制单元状态
