EATON S801 + 系列软启动器
基础信息与产品核心规格
产品定位与适用场景
设备类型:面板 / 外壳安装式三相感应电机软启动器,通过调节 SCR 导通时间控制电机端电压,实现平滑启动(机械 + 电气),启动后闭合内部接触器旁路 SCR 以提升效率;
适用领域:专为冷水机、泵、机床等工业设备设计,适用于启动转矩低于电机额定转矩的场景;
核心优势:具备多重电机保护功能,支持两种启动模式,适配宽范围电机功率需求。
核心硬件与型号划分
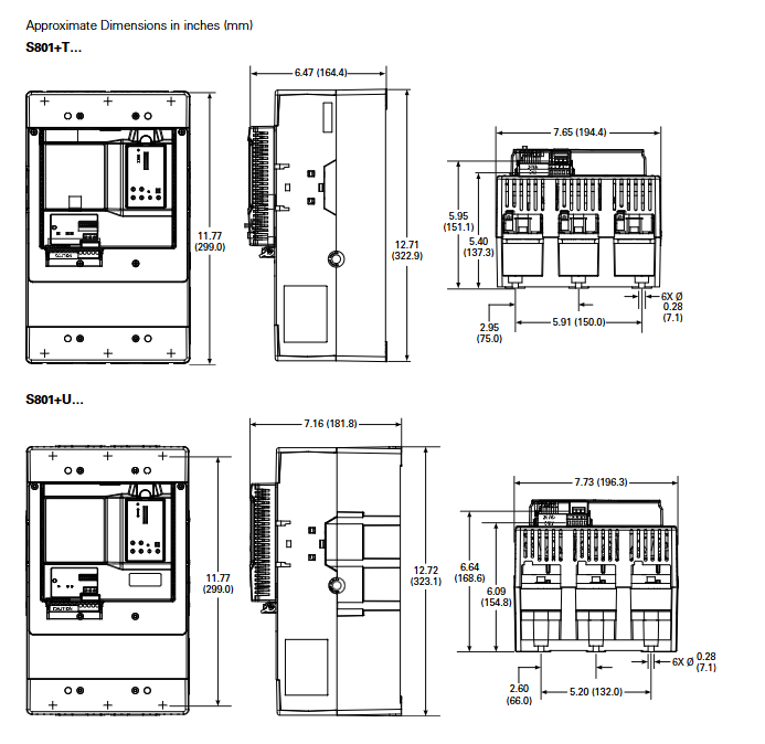
框架与额定参数:按 N/R/T/U/V 五大框架划分,核心参数如下表:
框架 额定电流范围(A) 重量(kg) 适用电机功率(kW/50Hz 400V) 螺栓数量 固定扭矩(Lb-in/Nm)
N 11-66 2.6 10-37 4 15/1.7
R 32-135 4.8 30-80 4 25/2.8
T 56-304 18.6 51-185 6 30/3.4
U 112-500 18.6 110-300 6 30/3.4
V 112-1000 41.4 110-525 8 50/5.6
核心配置:内置控制接口模块(CIM),支持参数配置与故障诊断;六组 SCR 全波功率桥,具备电子热过载保护、相序检测等功能;
控制电源:24 Vdc SELV/PELV,允许电压范围 18-30 Vdc,峰值耐受 35 Vdc(<100ms);控制功耗 25W(稳态)、240W(冲击,150ms)。
环境与合规参数
环境适应性:操作温度 - 40℃~50℃,存储温度 - 50℃~70℃,湿度 0-95% 无凝露;海拔≤2000m(超海拔每 100m 降容 0.5%);
合规标准:符合 UL 508、CSA 22.2-14-1995、IEC 60947-4-2、CCC GB14048,具备 CE 认证;
EMC 兼容性:抗静电放电(4kV 接触 / 8kV 空气)、抗电磁辐射(10V/m 80-1000MHz)。
安全规范与核心禁忌
人员与操作要求
资质要求:安装、操作、维护人员需为专业技术人员,熟悉高压安全操作规范;
核心禁忌:
禁止带电检修设备(含接线、参数调整),需先断开所有电源并验电;
禁止在输出侧加装隔离开关(除非配置停机联动机制),否则可能导致设备故障或人员危险;
控制端子仅允许接入 24 Vdc 电源,禁止接入 120 Vac(将永久损坏电路板);
禁止在 Auto Reset 模式下未采取安全措施(可能导致故障清除后意外重启)。
核心安全风险与预防措施
潜在风险 预防措施
高压触电 操作时站在绝缘垫上,单手操作;设备接地良好,接地导线截面≥1.5mm²
SCR 过热 保证通风良好,避免频繁启动(遵循启动间隔要求);确保启动后接触器正常旁路
数据丢失 参数配置后验证保存;避免在参数写入时断电
电机损坏 正确配置 FLA 与保护参数(如过载脱扣等级),禁止禁用关键保护功能
机械冲击 运输与安装时避免剧烈振动,重框架(如 V 框架)需用合适起重设备

安装流程与规范
安装前置条件
安装位置:控制柜 / 面板内,水平 / 垂直安装均可;SD 卡槽不可朝下(防卡片脱落);
间距要求:通风间隙≥30mm,远离热源(如变压器)≥15cm;
安装面要求:面板厚度 2-5mm(N/R 框架)或 1.5/2mm(V 框架),平面度≤0.5mm。
线缆与接线规范
动力线缆:
框架 导线规格(Cu 75℃) 接线扭矩(Lb-in/Nm) 端子类型
N 10-2 AWG 35-50/4.0-5.6 盒式端子
R 14-3/0 AWG 90-100/10.1-11.3 盒式端子
T/U 4/0-500 MCM 225-250/25.5-28.3 需配 EML 系列端子套件
V 4/0-500 MCM 225-250/25.5-28.3 需配 EML 系列端子套件
控制线缆:22-12 AWG(0.33-4.0mm²),接线扭矩 3.5 Lb-in(0.4 Nm);24 Vdc 电源线需≥14 AWG(2.5mm²),避免压降;
接地规范:设备需接保护地,接地导线截面≥1.5mm²,长度≤350mm,拧紧扭矩 1.3 Nm;
相位要求:默认进线相序 ABC,若电机转向错误,可交换电机端或软启动器输出端两相(禁止交换输入端,可能触发相序故障)。
设备固定与密封
固定方式:依框架用 4-8 个螺栓固定(N/R 框架 4 个,T/U 框架 6 个,V 框架 8 个),螺栓等级≥5.8 级;
密封要求:安装时确保端子盖板与密封条完好,V 框架需按要求安装通风风扇(500 ft³/min)。
操作与配置
启动与控制方式
启动模式:
电压斜坡启动(默认):从初始扭矩(0%-85%)逐步升压,启动时间 0.5-180s,电机达到同步转速后旁路 SCR;
电流限制启动:恒定电压控制,限制启动电流,适用于电网容量有限场景(不推荐风机 / 泵类变转矩负载);
Kick Start 辅助功能:启动时输出 0-2s 转矩脉冲(0%-85%),用于克服静态摩擦或高惯性负载;
控制方式:
本地端子控制:通过端子 P(允许)、1(启动)、2(Jog)、4(复位)实现启停与故障复位;
CIM 配置:通过 CIM 设置 FLA、启动模式、保护参数,查看故障码。
核心参数配置
必设参数:
参数名称 配置范围 默认值 说明
电机 FLA 32%-100% 框架额定值 框架最小值 需匹配电机铭牌 FLA,确保过载保护生效
过载脱扣等级 5-30s 20s 对应电机过载耐受时间
启动时间 0.5-180s 20s 电压斜坡达到额定电压的时间
初始扭矩 0%-85% 45% 启动初始转矩占锁定转子转矩比例
复位模式 手动 / 自动 手动 自动模式可能导致故障清除后重启
保护参数(默认启用,可禁用):过载、缺相、相序错误、堵转、SCR 过热、过电流、相位不平衡。
故障诊断与处理
故障码读取:长按 CIM 复位按钮或向端子 4 施加 24 Vdc,通过 LED 闪烁次数识别故障码(如 3 闪 + 2 闪 = 故障码 32);
常见故障码及解决方案:
故障码 故障类型 解决方案
11 热过载 降低电机负载,检查 FLA 配置,等待冷却(3-9 分钟)
22 缺相 检查进线电源、熔断器、接线紧固性
14 相序错误 交换电机端或软启动器输出端两相
32 SCR 短路 / 缺相 断电测量 SCR 电阻(正常≈10kΩ,短路 < 5Ω),联系维修
12 电机堵转 清除负载障碍,增加启动时间或初始扭矩
维护与配件
日常维护
定期检查:接线紧固性、通风孔清洁度、接触器状态(无异常噪音);
周期验证:保护参数有效性、启动曲线合理性、故障记录清零;
注意事项:过载故障后需等待冷却时间(1 次故障 3 分钟,2 次 6 分钟,3 次 9 分钟),断电无法重置冷却计时器。
配件选型
端子套件:T/U 框架用 EML22-26,V 框架用 EML28-33;
安装配件:安装板(EMM13 系列)、振动板(EMM14 系列)、IP20 防护套件(SS-IP20 系列);
替换零件:CIM 模块(EMA71)、控制线缆连接器(EMA75)。
存储与处置
存储与运输
存储条件:温度 - 50℃~70℃,湿度 0-95% 无凝露,避免腐蚀环境与剧烈振动;
运输要求:使用原厂包装,重框架需用气垫运输,防止设备损坏。
处置规范
设备含电子元件(SCR、电路板)与金属部件,需按当地环保法规分类回收;
禁止随意丢弃,可联系伊顿或授权经销商处理报废设备。
