REXRTOH IndraDrive HMV01 系列供电单元
博世力士乐IndraDrive HMV01 系列供电单元(含 HMV01.1E 和 HMV01.1R 两个子系列)的官方操作手册,核心围绕安全规范、额定参数与尺寸、接线安装、服务支持展开,明确产品适配工业环境(符合 IEC 60204-1/NFPA 79 标准),额定输入电压 3×380-480V AC、输出电压 DC 435-750V、最大输出电流 276A,强调操作需由专业人员执行,需遵守30 分钟电容放电、接地导体截面积≥1.5mm² 等安全要求,为设备安装、接线及运维提供全面技术指导。
核心技术参数
(一)HMV01.1E 系列关键参数
参数类别 单位 HMV01.1E-W0030 HMV01.1E-W0075 HMV01.1E-W0120
额定输入电流 A 51.0 125.0 204.0
输出电压 V DC 435-680 435-680 435-680
输出电流 A 69.0 173.0 276.0
控制电压功耗 W 25 30 55
连续功耗 W 150.00 340.00 500.00
设备宽度 mm 150 250 350
设备重量 kg 13.50 22.00 32.00
支路保护熔断器 A 80 150 250
推荐导线规格(AWG) - 6 1 4/0
(二)HMV01.1R 系列关键参数
参数类别 单位 HMV01.1R-W0018 HMV01.1R-W0045 HMV01.1R-W0065 HMV01.1R-W0120
额定输入电流 A 26.0 65.0 94.0 181.0
输出电压 V DC 750 750 750 750
输出电流 A 24.0 60.0 87.0 160.0
控制电压功耗 W 31 41 108 224
连续功耗 W 290.00 680.00 800.00 2000.00
设备宽度 mm 175 250 350 350
设备重量 kg 13.50 20.00 31.00 34.50
支路保护熔断器 A 40 80 110 225
推荐导线规格(AWG) - 10 6 3 3/0
(三)通用参数
供电条件:3×AC 380-480V,频率 50-60Hz(±2Hz),仅适用于 solidly grounded wye 电源。
控制电压:DC 24V±5%,短路电流额定值 42000A rms。
环境参数:额定工作温度 40℃,降容工作温度 55℃;存储温度未明确,相对湿度 20-90%(无凝露);污染等级 2。
物理通用尺寸:高度 440mm,深度 262mm;顶部最小安装间距 300mm,底部 130mm,水平间距 0mm。

安全规范要点
(一)电气安全
高压防护:设备存在>50V 危险电压,断电后需等待30 分钟让电容放电,测量确认无电压后方可操作。
接地要求:接地导体需永久可靠连接,泄漏电流>3.5mA,最小截面积需符合下表:
外部导体截面积(mm²) 单根接地导体最小截面积(mm²) 两根接地导体最小截面积(mm²)
1.5 10 2×1.5
2.5 - 2×2.5
4 - 2×4
6 - 2×6
10 10 -
16 16 -
25 25 -
接线安全:禁止通电时插拔连接器或触摸电气接点;需使用 UL 认证的 J 级 600V AC 熔断器作为支路保护。
(二)电池安全
禁止加热、拆解、充电或投入明火,否则可能导致爆炸、泄漏或灼伤。
更换电池时需使用指定型号,避免损坏设备电气部件;废旧电池需单独回收,遵守国家环保法规。
(三)操作安全
仅允许受过培训的专业人员安装、操作和维修,需熟悉安全规程及设备功能。
禁止私自改装设备结构或 decompile 软件组件;仅可使用博世力士乐认可的配件和备件。
设备需安装在控制柜等外部壳体中,防止异物侵入、进水及直接接触。
安装与接线规范
(一)安装要求
安装方式:固定于控制柜安装面,需预留散热空间(顶部 300mm、底部 130mm),避免遮挡进风口和出风口。
配件适配:可搭配可选主电源电抗器(HNL)和电源滤波器(HNF),提升电磁兼容性。
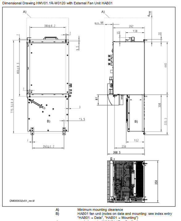
特殊型号:HMV01.1R-W0120 需配套外部风扇单元 HAB01,需遵循对应安装尺寸要求。
(二)核心接口与接线
关键接口定义:
X3:主电源连接(L1/L2/L3),支持最大导线截面积 120mm²,拧紧扭矩 20Nm(M10 螺纹)。
X2:RS232 接口,用于通讯连接。
X31:模块总线接口;X32:24V 接口电源与信号输入。
X33:内置主接触器反馈触点(ON/OFF 状态);X40:外部主接触器信号输入。
接线流程:先连接接地导体,再接入主电源和控制电压,最后连接信号接口;接线需符合 NFPA 79 和 UL 508A 标准,使用铜导线(PVC 绝缘,导体温度 90℃)。
