REXRTOH RAC 2 系列主轴驱动器控制器与CDH1/CGH1/CSH1 系列铣床型液压缸
博世力士乐RAC 2 系列主轴驱动器控制器与CDH1/CGH1/CSH1 系列铣床型液压缸两类产品的官方技术资料,核心围绕技术参数、安装配置、安全规范、接线要求、运维服务展开,明确 RAC 2 额定输出功率 30-52kW、液压缸额定压力 250bar 等关键规格,详细规定了多类型安装方式、接口适配(如 RAC 2 的 SERCOS/IO-Link)、密封系统选型及防屈曲、压力限制等实操要点,为设备选型、安装调试及维护提供全面技术指导。
基础信息
覆盖产品
RAC 2 系列:主轴驱动器控制器,适配 INDRAMAT 2AD 异步主轴电机(30-52kW)和 1MB frameless 主轴电机,支持主轴定位、C 轴操作功能。
CDH1/CGH1/CSH1 系列:铣床型液压缸,CDH1 为差动缸、CGH1 为双活塞杆缸、CSH1 为带磁致伸缩位置测量的差动缸,适配矿物油、水乙二醇等多种介质。
核心适用场景
共同适用于数控机床、工业自动化设备、重载传动系统。
RAC 2 主打高精度主轴控制;液压缸适配铣床、液压重载设备,支持多安装场景。
核心技术参数对比
(一)RAC 2 系列关键参数
参数项 数值范围 备注
额定输出功率(电机轴) 30-52kW 连续输出
输入电压 3×400V(50Hz±15%)/3×460V(60Hz±10%) 直接接入三相电网
位置分辨率 1/4000000 转 支持 C 轴高精度控制
冷却方式 控制柜内外风冷、软管冷却 内置风扇 + 散热片
设备重量 121kg 含安装框架
环境温度 5-45℃(额定),最高 55℃(降容) 湿度等级 F(DIN 40040)
(二)液压缸系列关键参数
参数项 数值范围 备注
额定压力 250bar 静态试验压力 375bar
活塞直径(ØAL) 40-320mm 符合 ISO 3320 标准
活塞杆直径(ØMM) 22-220mm 随活塞直径匹配
最大行程 6m 需结合防屈曲计算
介质温度 -20℃~+120℃ 依密封类型调整
清洁度要求 ISO 4406 20/18/15 需配套过滤装置
防护等级 IP65(主体),IP50(部分输出轴) 防固体异物与水溅

安全规范要点
(一)RAC 2 安全要求
电气安全
断电后需等待5 分钟电容放电,确认电压低于 50V 方可操作。
接地导体截面积≥10mm²,泄漏电流>3.5mA,永久可靠连接。
机械安全
需安装安全围栏、急停开关,垂直轴需额外机械锁紧,标配电机制动器不满足人员安全。
冷却风道需保持通畅,避免过热,散热片温度可能超过 60℃。
环境安全
心脏起搏器佩戴者禁止进入运行区域,设备防护等级 IP10(EN 60529)。
控制柜冷却需避免冷凝水滴落电子元件,冷却温度不低于 40℃。
(二)液压缸安全要求
压力与防屈曲
最大工作压力不超过 250bar,需考虑面积比导致的压力放大。
垂直安装时按欧拉公式计算允许行程,安全系数 3.5。
环境与防护
腐蚀防护等级分 CP3-CP7,适配常规到近海高盐雾环境。
避免侧向力作用于活塞杆,需保证运动轴机械对齐。
安装与配置规范
(一)RAC 2 安装与接线
安装要求
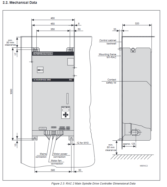
控制柜安装需使用 M1-RAC 2 安装框架,顶部最小间距 150mm,底部 80mm。
冷却方式可切换为控制柜内风冷、外风冷或软管冷却(需 M2-RAC 配件)。
核心接口
X2(标准接口):控制信号与模拟输出,37 针。
X3:电机反馈连接,15 针;X4:速度设定点(模拟 ±10V/SERCOS)。
X5:额外编码器输入,支持主轴同步反馈;X13:可选 RS232 / 增量编码器输出。
(二)液压缸安装与适配
安装方式分类
| 安装方式 | 适用系列 | 适用场景 |
| MP3 | CDH1/CSH1 | 底座旋转耳环,需摆动负载 |
| MP5 | CDH1/CSH1 | 底座自调叉头,补偿安装偏差 |
| MF3 | 全系列 | 头部圆形法兰,固定安装轴向负载 |
| MF4 | CDH1/CSH1 | 底座圆形法兰,机身一体化安装 |
| MT4 | 全系列 | 耳轴安装,重载摆动场景 |
| MS2 | 全系列 | 脚座安装,水平 / 垂直固定 |
关键配置
密封系统:9 种设计(M/G/V/L 等),适配不同介质(矿物油 / 水乙二醇 / 合成油)。
位置测量:CSH1 支持 IO-Link/Profinet/SSI 接口,分辨率最高 1μm。
紧固扭矩:活塞直径 100mm 的 MF3 法兰,螺栓规格 M12,紧固扭矩 100Nm。
编程模块与配件
(一)RAC 2 AS 编程模块
核心功能:存储电机优化参数与应用参数,更换控制器时可直接复用,无需重新调试。
兼容性:更新后的模块与旧模块兼容,支持参数复制(PC 或专用适配器)。
类型编码:示例 AS 53/004-003,含控制器型号、软件版本、电机适配信息。
(二)液压缸核心配件
密封件:M 型适配矿物油,G 型适配矿物油 + 水乙二醇,V 型适配合成油。
位置测量:IO-Link 接口供电 24VDC,传输速率 230.4kBaud;Profinet 支持 RT/IRT 协议,最大 100MBit/s。
辅助配件:接近开关(PNP 常开,防护 IP68)、节流阀、放气测量接头。
运维与服务
故障诊断
RAC 2 通过控制面板显示故障,故障时自动制动并断电,参考补充文档排查。
液压缸常见问题:密封泄漏(更换对应介质密封件)、位置测量偏差(校准传感器)。

维修更换
RAC 2 更换需使用吊装设备,编程模块直接插拔复用,故障设备需附带维修卡返还。
液压缸密封更换需按介质选型,腐蚀防护需定期检查涂层(CP3-CP7)。