TOSHIBA VRF Dx-coil 接口设备
1.基础信息
核心设备:
Dx-coil 控制器:TCB-IFDMX01UP-E(无继电器端子块)、TCB-IFDMR01UP-E(带继电器端子块)
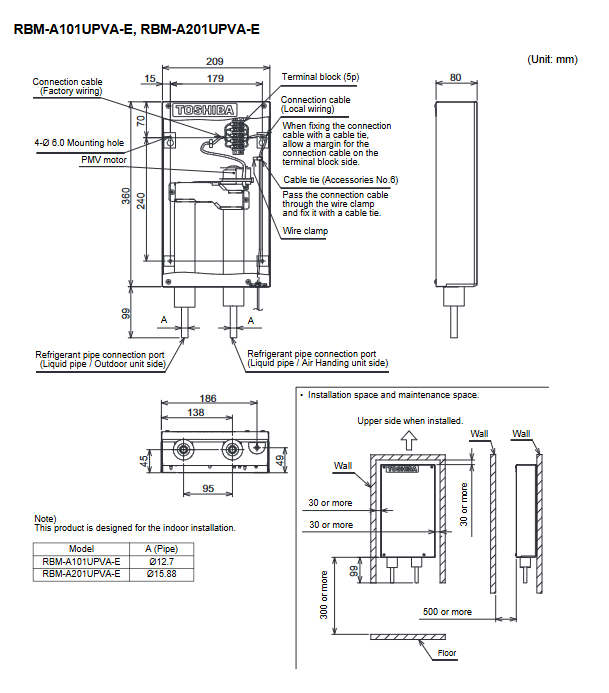
Dx-valve 套件:RBM-A101UPVA-E(管径 Ø12.7mm)、RBM-A201UPVA-E(管径 Ø15.88mm)
适用系统:可连接 SMMS-u/∞/e/7 及 SHRM-e 系列 VRF 室外机,需搭配现场制备的 AHU 与 DX COIL(直接膨胀盘管)
2. 核心技术参数与配置
2.1 系统类型与功能
系统类型 核心功能 温度设置范围(℃) 适配场景
TA 型 遥控器设定回风温度控制 制冷 13-25 / 制热 18-30 室温调节
TF 型 遥控器设定送风温度控制 18-29 通风系统
DDC 型 0-10V 模拟量直接容量控制 无室温控制功能 AHU 系统联动送风温度控制
2.2 关键硬件参数
制冷剂:仅支持R410A,禁止与 R22 等其他制冷剂混用,泄漏后需通风(遇火产生有毒气体)
传感器:
核心传感器:TC1(气体侧)、TC2(液体侧)、TCJ(毛细管)、TA(回风)、TF(送风)
电阻特性:25℃时 TC2/TCJ 电阻为 10.0kΩ,TA/TF 传感器 25℃时电阻 12.6kΩ
安装要求:TC1/TC2/TCJ 需钎焊固定,距端板 50±25mm
管路限制:
阀套件至 DX COIL 最大实际长度:5m
总配管长度:TA 型 200m,TF/DDC 型 120m(括号内 100m)
最大高度差:室外机 - 室内机 40m
2.3 容量适配表(部分核心规格)
DX COIL 类型 控制器型号 阀套件型号 适配容量(HP)
普通型 TCB-IFDMX01UP-E RBM-A101UPVA-E 8-40
普通型 TCB-IFDMX01UP-E RBM-A201UPVA-E 14-40
交错 / 分面型 TCB-IFDMX01UP-E RBM-A101UPVA-E 42-120
3. 操作与安全规范
3.1 人员资质要求
合格安装人员:需接受东芝 Carrier 培训,具备电气作业、制冷剂操作、高空作业等相关资质(符合当地法规)
合格维修人员:在安装人员资质基础上,额外具备设备维修技能
3.2 安全防护要求
作业类型 必需防护装备
所有作业 防护手套、安全工作服
电气相关 绝缘手套、绝缘鞋、防触电服装
高空作业(≥50cm) 工业安全帽、符合 ISO14122 标准的梯子
重物运输 防砸鞋头的鞋子
维修作业 电工专用防护手套
3.3 关键操作禁忌
断电要求:操作前必须关闭断路器,打开电气盒盖前需等待 5 分钟(电容放电)
制冷剂操作:禁止直接回收至室外机,需用专用设备回收;充注前需彻底排空空气
改装禁止:不得改装设备或零件,更换零件需符合手册规格(如继电器 G2RV-SR700-12DC)
安装限制:室内机安装高度≥2.5m,禁止安装在可燃气体易泄漏区域

4. 控制逻辑与输入输出
4.1 核心控制功能
自动容量控制:TA 型基于回风温度与设定值差值,TF 型基于送风温度与设定值差值及温度变化量
保护功能:
防冷风排放:制热时根据传感器温度控制风扇转速
防冻结控制:制冷时检测盘管温度,避免冻结
油回收控制:制冷 / 制热时定期回收压缩机润滑油
强制功能:TF 型支持强制恒温关闭(如 TA≤5℃时风扇强制关闭)
4.2 输入输出端口(MCC-1777 电路板)
模拟输入:0-10V(AI1-AI4)、4-20mA(AI1-AI2)
模拟输出:0-10V(AO1-AO2),风扇转速输出(HH=9V、H=6V、L=2V)
数字输入:安全触点、外部故障输入、运行模式选择(DI1-DI6)
数字输出:运行状态、报警、风扇转速、除霜模式(DO1-DOE)
通信接口:Modbus(支持 RS-485,波特率可选 9600-57600bps)
5. 故障排查与维护
5.1 常见检查码及含义
检查码 故障类型 排查方向
P05 电源缺相 / 接线错误 检查电源接线及断路器
P10 安全触点断开 检查 DI1 端子连接
L30 外部故障输入 检查 AHU 风扇运行状态
F10 TCJ 传感器故障 检查传感器接线是否短路 / 开路
5.2 维护要点
绝缘测试:作业后需用 500V 兆欧表检测,带电部分与非带电金属间电阻≥1MΩ
检漏要求:安装 / 维修后必须检查制冷剂泄漏
测试运行:需通过有线遥控器进入 TEST 模式,仅支持制冷 / 制热模式测试
零件更换:控制器核心电路板为 MCC-1777,传感器线缆长度 7.5m,不足时需用可选传感器 TCB-IFDES1001P-E(10m)
6. 关键设置与校准
系统类型设置:通过 SW501 开关配置(TA 型全关、TF 型仅 Bit2 开、DDC 型 Bit3 开)
DN 码设置:需用有线遥控器(RBC-ASCU1-E)配置,包括设备容量、阀套件类型、传感器功能等(如 DN11 设置容量码、DN4AE 设置阀套件类型)
Modbus 设置:通过 SW506(波特率)、SW507(地址)配置,最多支持 16 个设备联网
