Toshiba TE3 系列低压数字固态软启动器使用说明
Toshiba TE3 系列是一款18-1250A 电流范围的低压数字固态软启动器,支持208-600VAC 三相电源,具备软启动 / 软停止、电流限制、过载保护等核心功能,集成5 路数字输出、4 路数字输入、1 路模拟输入 / 输出,支持Modbus RTU 通信及本地触摸屏操作,通过 Auto Setup 可快速适配搅拌机、压缩机等 30 + 种应用场景,内置过温、缺相、晶闸管故障等多重保护,安装需符合 NEC 标准,适用于工业旋转机械的平稳启动与保护,降低启动冲击电流。
产品基础架构与规格
1. 核心规格汇总
项目 规格细节
电流范围 18A(TE3-18)-1250A(TE3-1250),共 12 种型号
电压范围 208VAC、240VAC、480VAC、600VAC 三相
功率适配 208VAC:5-450HP;600VAC:10-1200HP
启动时间 1-300s(可自定义)
软停止时间 0-300s(可自定义)
过载等级 10/20/30 级(对应不同跳闸曲线)
通信参数 Modbus RTU(地址 1-32,波特率 9600-115200)
重量范围 4kg(TE3-18)-181kg(TE3-1250)
2. 输入输出接口
接口类型 规格参数
数字输入(DI) 4 路,支持 110/230VAC 或 24VDC,可映射启动 / 停止 / 复位等功能
数字输出(DO) 5 路,240VAC 1A(DO1-DO4)、240VAC 3A(DO5),支持故障 / 运行状态输出
模拟输入(AI) 1 路,0-10V 或 4-20mA,可映射电流限制、过载等功能
模拟输出(AO) 1 路,0-10V 或 4-20mA,可输出实测电流、过载百分比
特殊接口 PTC 热敏电阻输入(PTC+/PTC-),支持电机温度保护

核心功能与配置
1. 启动与停止功能
软启动:通过电压斜坡控制(1-300s),降低启动冲击,启动基座电压 10%-100% 可调。
Kick Start:针对粘性负载,提供 10-2000ms 扭矩脉冲(30%-80% 电压),辅助启动。
电流限制启动:限制启动电流为电机 FLA 的 50%-600%,避免电网冲击,限制时间 1-600s。
软停止:电压斜坡减速(0-300s),支持自动平滑停止,防止泵类设备水锤效应。
2. 自动配置与应用适配
Auto Setup:内置 30 + 预设应用场景(如离心压缩机、螺旋输送机、潜水泵等),一键匹配启动参数。
参数自适应:自动调整启动基座电压、斜坡速率、电流限制等参数,适配不同负载特性。
快速调试:支持参数备份到 USB、批量复制配置,固件可通过 USB 升级。
3. 保护功能详解
保护类型 触发条件 响应方式
过载保护 电流超过 115% 电机 FLA,达到对应过载等级跳闸时间 跳闸停机,需手动 / 自动复位
过温保护 散热器温度>90℃ 跳闸停机,冷却后自动复位
缺相保护 输入 / 输出侧任意一相缺失 立即跳闸
低电流保护 电机电流<25% 电机 FLA,持续 4000ms(可自定义) 跳闸停机
晶闸管故障 晶闸管未正常导通 / 短路 立即跳闸,需检查 L1-T1/L2-T2/L3-T3 电阻
PTC 保护 PTC 热敏电阻阻值>4kΩ 或开路 跳闸停机
电压不平衡 三相电压差值超出允许范围 跳闸停机
4. 节能与监控功能
iERS 智能节能:动态调节电机电压,降低轻载时的能耗,节能水平 0%-100% 可调。
实时监控:触摸屏显示三相电流、电压、功率因数、散热器温度、过载百分比等参数。
日志记录:存储 10 次跳闸事件、启动 / 停止峰值电流、散热器温度历史数据,支持 USB 导出。
自动复位:支持 0-7200s 复位延迟、0-10 次重试,可选择对缺相、过载等故障自动复位。
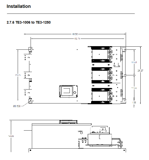
安装与合规要求
1. 安装规范
安装方式:垂直安装在平整表面,预留通风间隙(最小 25mm,大电流型号需 127-483mm)。
环境要求:避免粉尘、腐蚀性气体、剧烈振动,海拔>1000m 时每升高 100m 降容 1%(最高 2000m)。
接线要求:主电路采用铜导体,线径 0.3-1010mm²,接线扭矩 2.8-124.3N・m;控制电路与主电路分开布线,使用屏蔽线。
短路保护:需配置 Class J/L/RK5 熔断器或断路器,额定电流 100A-1600A(依型号而定)。
2. 合规标准
电气安全:符合 NEC 70(NFPA 70)、UL508、cUL508 标准。
电磁兼容:EN 55011 Class A,IEC 61000-4 抗干扰标准。
环境合规:RoHS 兼容,废弃需遵循当地电子废弃物处理法规。
操作与维护
1. 控制方式
本地控制:通过触摸屏启停、配置参数、查看状态,支持多语言切换。
远程控制:两线 / 三线控制(DI 接口)、Modbus RTU 通信(支持启动 / 停止、参数读写)。
手动 / 自动切换:支持 Hand/Auto 模式,通信故障时自动切换到本地控制。
2. 维护要点
定期检查:每年至少一次清洁散热器、检查接线紧固性、验证保护功能。
故障排查:通过跳闸代码(101-2799)快速定位问题(如 101 = 输入侧 L1 缺相)。
长期存储:环境温度 - 25℃~70℃,干燥通风,避免堆叠重压。
