Woodward easYgen-3000 系列(Package P1)发电机组控制器
概述
Woodward easYgen-3000系列发电机控制器是专为发电机组控制设计的先进设备,提供全面的监测、保护和自动化功能。本手册(37223E版)详细介绍了easYgen-3200(塑料外壳)和easYgen-3100(金属外壳)两种型号的安装、接线和技术规格。软件版本为1.10xx,适用于零件号8440-1816、8440-1817、8440-1818和8440-1831的产品。
安全警告与重要提示
关键安全警告
独立超速保护:原动机必须配备完全独立于控制器的超速(超温或超压)停机装置,以防调速器或控制系统失效导致设备损坏或人员伤亡。
禁止未授权修改:任何超出规定机械、电气或操作限制的未授权修改可能导致人身伤害和/或财产损失,并使产品保修和认证失效。
静电防护:电子控制单元包含静电敏感部件,操作前必须通过接触接地表面释放身体静电,避免接触印刷电路板上的元件和导体。
重要定义
警告:表示潜在危险情况,如不避免可能导致死亡或严重伤害。
注意:表示潜在危险情况,如不避免可能导致设备损坏。
说明:提供不属于警告或注意类别的其他有用信息。
安装与机械特性
外壳类型
塑料外壳(easYgen-3200)
用于前面板平装,带图形液晶显示屏
防护等级:使用夹具安装时为IP54,使用螺丝套件安装时可提升至IP66
整体尺寸:282×217×99 mm
面板开孔尺寸:249(+1.1)×183(+1.0) mm
金属外壳(easYgen-3100)
用于开关柜背板安装,无显示屏
防护等级:IP20
尺寸:249.6×227.4×84.1 mm
安装要点
塑料外壳安装:可使用夹具或螺丝套件安装,使用全部12个螺丝可获得IP66防护等级
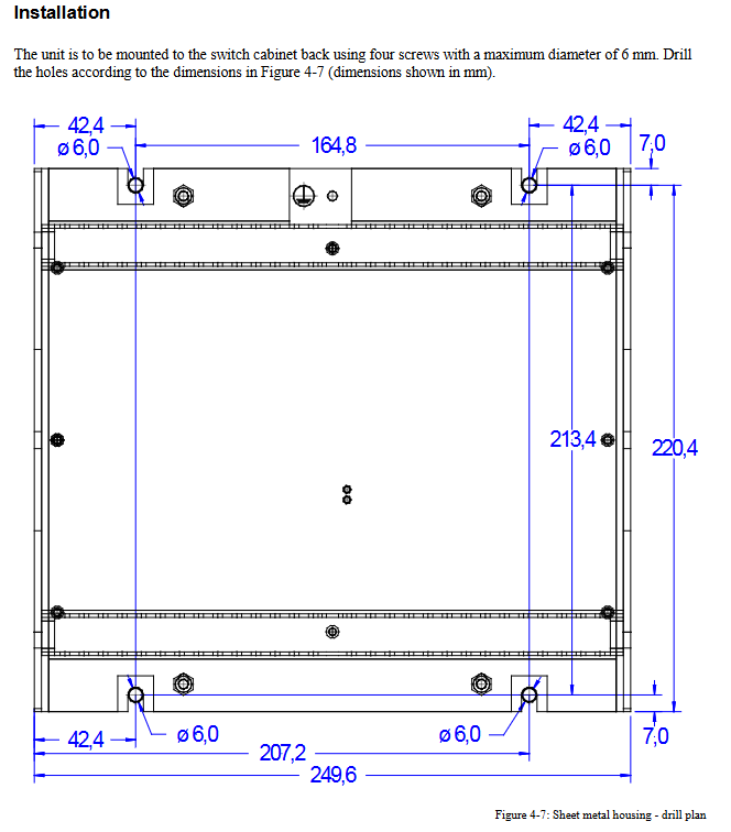
金属外壳安装:通过4个最大直径6mm的螺丝安装在开关柜背板上
面板厚度限制:如面板厚度超过2.5mm,需使用长度=面板厚度+4mm的螺丝

电气连接详解
电源供应
电压范围:8-40 VDC
保护接地:必须连接截面积≥2.5mm²的保护接地线
推荐保护装置:
保险丝:NEOZED D01 6A或等效产品
微型断路器:6A/C型(如ABB S271C6)
电压测量(FlexRange技术)
输入类型:提供100V和400V两套输入端子,不可同时使用
配置规则:
次级额定电压50-130V:使用100V输入端子
次级额定电压131-480V:使用400V输入端子
接线方式:支持3相4线、3相3线、1相3线和1相2线(相-中性或相-相)多种配置
电流测量
变比选择:支持./1A和./5A两种变比
精度等级:1级
安全注意:断开设备前必须短接电流互感器二次侧
接地要求:电流互感器二次侧一端应在靠近CT处接地
功率测量与功率因数
功率方向指示:
发电机实际功率:正值表示发电,负值表示逆功率
功率因数:正值表示感性/滞后,负值表示容性/超前
功率因数定义:实际功率与视在功率之比,纯电阻电路为1.00,感性负载为滞后功率因数,容性负载为超前功率因数
数字输入/输出
数字输入:12路,电气隔离,可配置为正极性或负极性信号
重要警告:DI01"紧急停止"仅为信号输入,紧急停止功能必须在控制器外部独立实现
继电器输出:12路,可编程(通过LogicsManager功能)
触点类型:常开(NO)和可切换触点
负载能力:通用型2A@250VAC,2A@24VDC
模拟输入(FlexIn技术)
传感器类型:支持0/4-20mA、0-500Ω电阻和VDO传感器
接线方式:
双线传感器:精度≤1%(电阻)或≤1.2%(电流)
单线传感器:精度≤2.5%(需确保机壳接地与PE间压差≤±2.5V)
推荐传感器:VDO系列
接口配置
RS-485接口:支持半双工和全双工Modbus通信
RS-232接口:标准串行接口,电气隔离
CAN总线接口:两个独立CAN通道(FlexCAN技术)
推荐电缆:屏蔽双绞线(如Lappkabel Unitronic LIYCY)
终端电阻:两端需连接120Ω终端电阻
最大长度:与波特率相关(1Mbps时25m,20kbps时2500m)
技术数据总览
测量性能
电压测量:
100V输入:额定69/120VAC,最大86/150VAC
400V输入:额定277/480VAC,最大346/600VAC
精度:1级,线性范围1.25×额定值
电流测量:
精度:1级
线性范围:发电机侧3×额定值,电网/接地侧约1.5×额定值
模拟输入:11位分辨率,支持0-20mA和0-500Ω输入
环境适应性
工作温度:-20°C至70°C
存储温度:-30°C至80°C
湿度:60°C,95%相对湿度,5天测试
振动:符合EN 60255-21-1/-3、MIL-STD 810F等标准
冲击:40G,锯齿波脉冲,11ms
认证与防护
电气安全:CE标志、UL认证(普通场所)
船舶认证:LR(劳氏船级社)、ABS(美国船级社)
防护等级:塑料外壳IP54/IP66,金属外壳IP20
电磁兼容:符合相关EN标准
精度参考条件
为确保测量精度,建议在以下条件下操作:
输入电压:正弦额定电压
输入电流:正弦额定电流
频率:额定频率±2%
电源:额定电压±2%
功率因数:1.00
环境温度:23°C±2K
预热时间:20分钟
特殊应用注意事项
船舶应用
电源滤波:在桥梁和甲板区域使用时,需为电源输入配备EMI滤波器(如TIMONTA FSS2-65-4/3)
附加安全装置:需额外独立的安全保护装置以满足船级社规范
认证:easYgen已获得劳氏船级社型式认证
静电防护
操作电子控制单元前,必须通过接触接地金属表面释放身体静电
避免穿戴合成材料衣物,尽量穿着棉质衣物
让塑料、乙烯基和泡沫材料远离控制单元和工作区域
