Allen-Bradley 1391-DES 系列数字交流伺服驱动器
驱动器基础信息
产品定位与功能
1391-DES 是一款数字可编程单轴交流伺服驱动器,适配 Allen-Bradley 1326 系列交流伺服电机,主要用于机床、自动化设备等闭环定位系统(如 IMC S 级、MAX 控制器),支持速度和转矩控制模式。
核心优势:可使 1326 电机在额定转速基础上超转 33%-50%,提升设备精度与生产效率;自带编码器输出(AQB),提供 256/512/1024/2048 线 / 转的位置反馈信号,适配定位控制器。
型号与关键参数
型号分类:按持续电流分为 1391-DES15(15A)、1391-DES22(22.5A)、1391-DES45(45A),三者物理尺寸一致,仅电气参数不同。
核心电气参数:额定直流母线电压 300V DC,峰值电流为持续电流 2 倍(如 DES45 峰值 90A),调制频率 2500Hz±10%,速度调节精度 0-0.05%(95% 负载变化下),工作温度 0-60°C,海拔≤1000 米无需降容。
标准配置与可选功能
标准功能:输入瞬态电压保护、内置断路器、直流母线分流调节器(耗散再生能量)、2 行 LCD 显示与编程面板、转矩前馈差分输入、微处理器控制板(易拆装便于故障排查)。
可选功能:接触器辅助开关(用于电机制动控制或状态指示)、外部分流电阻(适配高再生能量场景,如 22.5A 驱动器可选 386W 外部电阻)、转速 / 电流监测输出、防回差控制、线性加减速模块(CR-APG-001,支持 4 个预设速度)。

工作原理
核心电路与能量处理
功率转换:将 3 相 50/60Hz 交流电经整流桥转为 300V DC 母线电压,再通过 PWM 逆变器输出变压变频交流电,控制电机转速与转矩。
再生制动:电机减速时产生的再生能量会升高直流母线电压,分流调节器监测到电压超阈值(386.4V DC)时,触发斩波晶体管导通,将能量导入制动电阻转化为热能,避免母线过压跳闸(过压保护阈值 405V DC)。
控制逻辑
闭环控制:通过电机 resolver(旋转变压器)反馈转子位置,结合速度 / 转矩指令,经电流环、速度环调节,实现精准控制;电流环采用模拟控制,速度指令支持 ±10V DC 模拟量输入。
启停模式:包含动态制动(断开接触器时母线放电制动)、再生制动(使能信号断开时反向转矩制动)、自由停车(故障时驱动器断开输出,电机惯性停车)三种模式。
安装与接线
安装要求
环境:需安装在封闭机柜内,通风需过滤 / 冷却,避免油雾、粉尘、腐蚀性气体;垂直安装,单驱动器与电机距离≤3m,多驱动器时主驱动器距变频器≤3m,从驱动器距主驱动器≤1.5m,设备间距≥304.8mm(保证散热)。
接地:驱动器外壳需可靠接地,信号地(如 resolver、控制信号)采用 “星型接地”,避免接地环路引入噪声。
接线规范
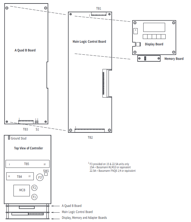
功率接线:电机动力线(TB5-1~3)、输入电源线(TB5-4~6)需用双绞线,单独穿管,线径参考手册(如 DES45 用 8AWG/6mm²);外部分流电阻(TB5-8~10)需按型号匹配(如 45A 驱动器需外接 5Ω 电阻)。
信号接线:速度指令(TB2-1~2)、使能信号(TB2-9~10)、复位信号(TB2-11)等控制信号需用 18AWG 双绞线,与功率线间距≥304.8mm; resolver 接线(TB1-1~10)需用屏蔽线,屏蔽层单端接地。
开关与跳线设置
分流调节器占空比开关(SW1):调节制动电阻过热保护阈值,不同驱动器对应不同档位(如 DES22 配外部电阻时设为 “F” 档)。
AQB 编码器输出开关(S1):选择输出线数(256/512/1024/2048),需与定位控制器参数匹配(如 IMC 经典控制器需将线数减半设置)。
编程与调试
参数层级与操作
参数分为三级:View 级(仅查看运行状态,如转速、电流)、Modify 级(配置系统参数,如速度限制、电流环增益)、Maintenance 级(高级参数,如惯量补偿、摩擦补偿),需通过特定按键组合解锁(如 Maintenance 级需同时按上 / 下 / 左箭头 + Enter 键)。
核心参数:模拟速度增益(参数 211,默认 500rpm/V,可按 “最大电机转速 / 最大指令电压” 计算)、速度限制(参数 144/145,默认比电机额定转速高 10%)、电流限制(参数 156/157,默认 300% 电机额定电流)。
启动调试流程
前期检查:确认接线无误后,通电验证控制电压(±12V DC、+5V DC)、母线电压(300V DC)正常,无故障报警。
引导式启动:首次通电时驱动器自动引导电机型号选择、旋转测试(验证电机接线,顺时针 / 逆时针各转 5 秒)、零速偏移校准(自动消除指令偏移)。
自动调谐(Auto Tune):通过参数 190 启动,驱动器自动测量系统惯量、摩擦系数,计算最优速度环增益(Kp/Ki),适用于多数场景;手动调谐需调整参数 168(比例增益)、169(积分增益),使速度响应超调控制在 20%-30%。

故障排查与维护
故障诊断
故障指示:正面 LED 灯(STATUS 灯红闪 = 故障,绿常亮 = 正常;ENABLE 灯亮 = 驱动器使能),LCD 显示具体故障代码(如 “amp overtemp”= 驱动器过热、“resolver loss”= 旋转变压器故障)。
常见故障处理:
过压故障:检查输入电压、分流电阻是否断路 / 选型错误、负载惯量是否过大;
旋转变压器故障:排查 resolver 接线是否松动 / 接反、电缆长度是否超 600 英尺;
过流故障:检查电机是否短路、电流限制参数是否设置过小、负载是否卡阻。
维护要点
定期检查:清洁散热风扇、确认接线端子无松动、制动电阻无过热痕迹;
部件更换:熔断器需按手册型号更换(如 DES15 用 Bussmann KLM10 10A/500V),避免用替代型号;更换控制板时需注意 ESD 防护(佩戴防静电手环)。
配套设备与附件
适配组件
电机:1326AB 系列交流伺服电机(含 Torque Plus 系列),需匹配驱动器电流(如 DES22 适配 1326AB-B3E 电机);
变压器:1391 隔离变压器(输出 230V AC 3 相 + 36V AC 1 相,如 1391-T050DT 5kVA 型号),确保 UL 认证有效性;
电缆:1326-CFUxx(resolver 线)、1326-CPABxx(电机动力线)、1391-CAQB(AQB 编码器线)等专用屏蔽电缆。
附件选项
制动电源整流器(1326-MOD-BPS):为 90V DC 抱闸提供 115V AC 输入整流;
行星齿轮箱(1326AB-PG 系列):适配不同减速比(3:1~100:1),低背隙选项(LB)适用于高精度场景;
线性加减速模块(CR-APG-001):手动设置梯形速度曲线,支持 4 个预设速度。
