ADCA线性电动执行器AVF234S和AVM234S
产品基础与核心定位
产品型号:ADCA 品牌AVM234S、AVF234S线性电动执行器,为阀门专用驱动设备,由 VALSTEAM ADCA 按欧盟PED 压力设备指令的合理工程规范生产。
核心优势:具备阀门行程自动适配、精准驱动、高能效、运行噪音低的特点,AVF234S额外拥有弹簧复位的故障安全功能。
适配场景:理想用于 DSH 系列直接蒸汽喷射加湿器、TDS(总溶解固体)控制系统的 VCP 排污阀,也可驱动 V 系列 ADCATrol 控制阀,其他阀门可按需适配。
核心功能特性
防护与安全
防护等级达IP66(EN 60529),防护类别 III(IEC 60730),过电压类别 III,污染等级 III;
AVF234S专属弹簧复位故障安全:断电 / 供电中断时,由弹簧驱动至故障安全位置(推力杆伸出),弹簧复位次数 **>40,000 次 **;
调制工况下,通过限位开关实现终端位置密封。
控制与调节
支持自动检测控制信号,并配备 LED 信号指示;
输入类型:开关输入(2 点 / 3 点步进控制)、模拟输入(0…10 V 或 4…20 mA);
可通过DIP 开关调节特性曲线(线性、二次、等百分比)和电机运行时间 / 速度,满足不同阀门控制需求。
操作与指示
支持手动操作,可实现执行器电机脱开,适配现场应急操作;
配备机械行程指示,直观查看阀门驱动行程状态。
关键技术参数
1. 基础电气与动力参数(核心区分 AVM234S/AVF234S)
参数项 AVM234S AVF234S 备注
供电规格 230 V 50/60 Hz、110 V 50/60 Hz、24 V 50/60 Hz、24 V DC 同左 多电压适配
功耗 10 W(20 VA)(24V 交 / 直流);13 W(28 VA)(230V 交流) 同左 需按此值选配变压器,否则易故障
电机运行速度 10(0.17)、15(0.25)、30(0.50) mm/min(mm/s) 同左 DIP 开关调节
弹簧复位时间 - 15…30 s 对应 14…40 mm 行程,与设定运行时间无关
输出驱动推力 2.5 kN 2 kN 额定推力
3 点步进响应时间 200 ms 同左 快速响应
执行器行程 0…49 mm 0…40 mm 最大行程
外壳材质 阻燃塑料 同左 耐温、防火特性
2. 定位器参数
控制信号 1:0…10 V,输入阻抗Ri=100 kΩ;
控制信号 2:4…20 mA,输入阻抗Ri=50 Ω;
位置反馈:0…10 V,要求负载 **>2.5 kΩ**;
起始点 U0:0 V 或 10 V,控制量程 ΔU:10 V,开关范围 Xsh:300 mV。

环境参数
环境指标 额定值 备注
允许环境温度 -10…55°C 工作温度
允许环境湿度 < 95% rh 无凝露
介质温度 最大 130°C 配高温适配器可至180°C/240°C
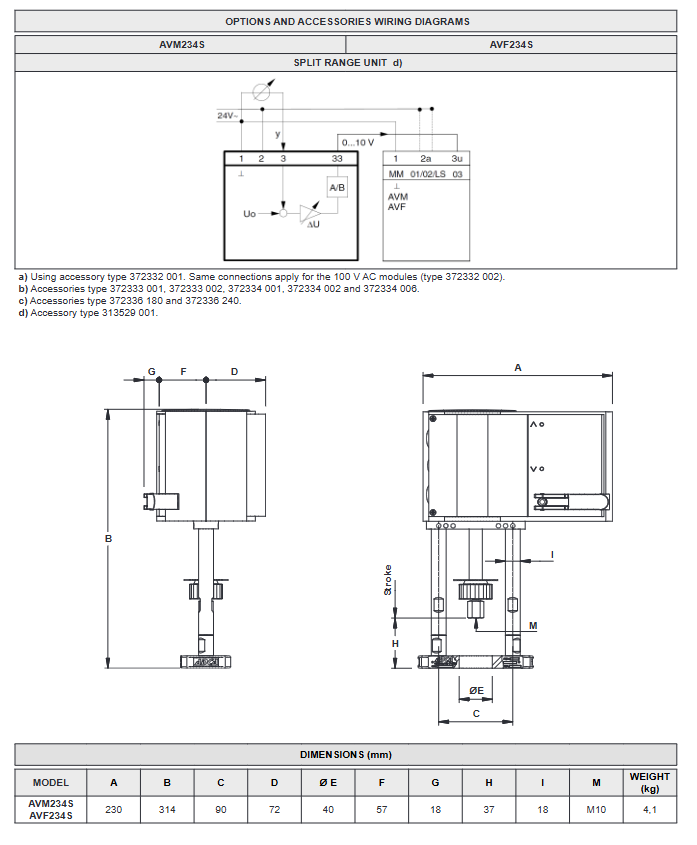
可选配件与附件(含型号)
所有配件均为专用型号,适配不同功能扩展需求,核心配件如下表:
配件类型 型号 核心参数 / 功能
分程单元 313529 001 调节动作序列,安装在独立接线盒
供电 / 激活模块 372332 001 2/3 点 + 模拟激活,230 V AC±15%,额外功耗 2 VA
供电 / 激活模块 372332 002 2/3 点 + 模拟激活,100 V AC±15%,额外功耗 2 VA
辅助转换触点 372333 001 12…250 V AC,最小 100 mA/12 V,6 (2) 组触点(每组 2 个)
辅助转换触点 372333 002 12…250 V AC,镀金触点,1 mA 起 / 最大 30 V,3 (1) 组触点(每组 2 个)
电位器 372334 001/002/006 24 V/1 W,阻值分别为 2 kΩ/130 Ω/1 kΩ,适配闭环 3 点步进
高温适配器 372336 180 适配介质温度130…180°C
高温适配器 372336 240 适配介质温度180…240°C
物理规格
尺寸(单位:mm):AVM234S/AVF234S 通用,A=230、B=314、C=90、D=72、ØE=40、F=57、G=18、H=37、I=18、螺纹 M10;
重量:4.1 kg,两款型号重量一致。
标准与指令合规
产品符合欧盟多项核心指令与标准,确保产品兼容性与安全性:
EMC 指令 2014/30/EU:符合 EN 61000-6-2、EN 61000-6-4;
低电压指令 2014/35/EU:符合 EN 60730-1、EN 60730-2-14;
压力设备指令(PED):按欧洲合理工程规范生产。
