Honeywell Experion PKS 通用过程机柜
产品基础信息
核心定位:UPC 是 Experion PKS 系统的远程 I/O 机柜,用于将 Series-C UIO-2/LLAI 模块部署在远离 C300 控制器的现场,实现分布式信号采集与控制,可替代传统编组机柜,适配绿场(新建)与棕场(改造)项目。
物理与防护特性
| 项目 | 规格参数 |
| 材质 | 316L 不锈钢,防腐蚀 |
| 防护等级 | IP66(需使用 IP66 级电缆格兰头 / 导管配件) |
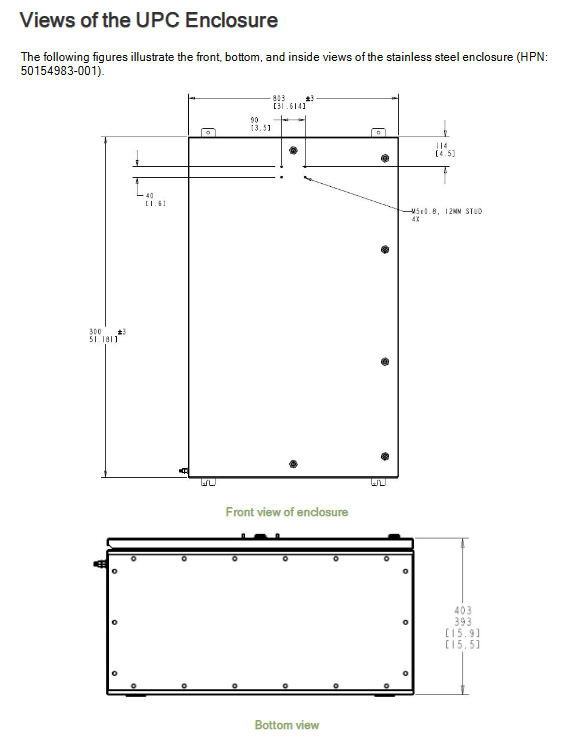
| 尺寸 | 1300mm(高)×800mm(宽)×400mm(深) |
| 重量 | 典型配置约 136.4kg(300lbs) |
| 环境适配 | 符合 ANSI/ISA-S71.04 GX 级(恶劣环境),支持户外安装(需配遮阳罩) |
环境与认证
工作温度:-40℃~+55℃(无需额外冷却 / 加热),存储温度适配工业标准
湿度范围:10%~95%(无凝露),振动 / 冲击抗性符合工业规范
核心认证:危险区域认证(cCSAus、ATEX、IECEx)、CE 合规(2014/24/EU ATEX、2014/30/EU EMC、2014/35/EU LVD、2011/65/EU RoHS)
核心配置与功能
1. 电源系统
配置选项:支持 3 类冗余 AC/DC 电源,具体参数如下:
| 电源类型 | 型号 | 输出电流 | 关键特性 |
| ATDI | 51198685-100 | 20A | 冗余设计,支持电源架安装 |
| ATDI | FC-PSUNI2424 | 25A/600W | 高功率输出,适配重载场景 |
| Phoenix Contact | Quint4+ | 20A | AC/DC 或 DC/DC 可选,稳定性强 |
供电规范:AC 输入电压100-240V AC(47-63Hz),支持冗余 AC 主电源,可通过端子排实现 3 台 UPC 菊花链供电(推荐线径 14AWG,最大 10AWG)
保护功能:具备极性反接保护、过载保护、短路保护,配备独立熔断器
2. I/O 模块与容量
支持模块:UIO-2 通用 I/O 模块(32 通道 / 模块)、LLAI 低电平模拟输入模块(16 通道 / 模块)
容量上限:最多 3 个 UIO-2 IOTA(96 通道)或 8 个 LLAI IOTA(128 通道)
I/O 点配置:支持 4 种组合方案:96 IS、96 Non-IS、64 IS+32 Non-IS、32 IS+64 Non-IS
模块安装:冗余 IOTA(CC-TUIO41,12 英寸)、非冗余 IOTA(CC-TUIO31/CC-TAIL51,9 英寸),支持热插拔维护
3. 通信方案
UPC 支持两种互斥通信方式,适配不同距离与拓扑需求:
通信方案 核心组件 传输参数 拓扑支持
CN100 IO HIVE CC-IION01 CN100 模块、SFP 光模块 单模 10km、多模 2km、铜缆 100m 星型,支持 20 组控制器分配
传统 FOE MOXA EDS-305 系列光纤扩展器 单模 10km、多模 2km 星型、菊花链(7 个远程点)、混合拓扑
关键特性:CN100 支持 1280 IO 通道,可选 ControlSolver 许可证(240/800 点),FOE 支持 “蛙跳” 机柜间连接
4. 编组(Marshalling)方案
提供 3 种编组方式,适配不同信号处理需求:
编组类型 核心组件 关键功能 适用场景
Universal Marshalling CC-USCA01 信号调理组件 + SCA 适配器 支持 16 通道,含隔离、继电器、本质安全屏障 通用场景,需信号调理 / 安全隔离
VIPER 51454988 系列端子组件 + IOA 配件 8 通道 / 模块,支持熔断、断开测试、HART 透明传输 复杂信号,需灵活配置 IOA
Weidmuller 魏德米勒现场端子组件 无源直通,支持 2 线制信号,带屏蔽端子 简单信号,追求低成本部署
SCA 适配器类型:含直通、继电器输入 / 输出、低电平输入、模拟 / 数字隔离器、本质安全屏障等 11 种型号

安装与部署规范
1. 安装前提
支撑要求:安装结构承重≥1200lbs,使用 M10×1.5mm A2-70 级螺栓固定
空间要求:机柜周围无遮挡,保证散热,户外安装需配遮阳罩(避免阳光直射)
运输规范:水平放置于防震货车,振动负载≤0.5Gs,禁止堆叠
2. 布线与接地
电缆进线:仅允许底部进线,最多支持 30 个电缆格兰头,需使用 IP66 级配件
接地要求:保护接地(PE)线≥10AWG,EMC 接地需 4AWG 线(最长 5 米),配备安全接地排、仪表接地排、屏蔽接地排
布线隔离:本质安全(ic 级)布线需与其他布线物理隔离,符合 NEC/CEC 规范
3. 拓扑配置
星型拓扑:最多 16 个 FOE 单元并行连接 C300,单模最大 10km
菊花链拓扑:每路最多 7 个远程 UPC,单模最大 10km / 多模 2km
混合拓扑:星型(16 列)+ 菊花链(7 行)组合,最大支持 40 个地址
维护与服务
1. 可更换单元(ORU)
核心可维护组件包括:电源模块、UIO-2/LLAI 模块及 IOTA、FOE 光纤扩展器、风扇组件(51454248-100)、SCA 适配器、熔断器等
2. 熔断器规格
熔断器类型 适用组件 电压 电流
Type F 光纤转换器 250V 750mA
Type F 24VDC 端子排 250V 5A
Type T 风扇 + 报警模块 250V 375mA
Type T AC 端子排 600V 10A
Type T DC 主电源端子排 300V DC 30A
3. 安全维护规范
操作环境:仅允许在非危险环境下进行维护,禁止雨天 / 高湿度时开盖
防静电:维护前需连接机柜 ESD bonding 点,佩戴接地腕带
熔断器更换:断电后操作,需使用同规格原厂配件
核心优势与应用场景
核心优势:集成化设计减少现场编组机柜需求;IP66 防护 + 316L 不锈钢适配恶劣环境;远程部署能力强,避免控制室空间不足;冗余电源与通信提升可靠性;多认证覆盖危险区域使用
应用场景:石油化工、电力、冶金、制药等流程工业的分布式信号采集与控制,尤其适用于现场设备分散、环境恶劣、需远程监控的场景
