Tektronix 5440 示波器
仪器核心概况
(1)硬件结构
插件舱:共 3 个,可容纳 5000 系列插件(无 N 后缀插件支持显示读数),2 个垂直舱(左、中)用于放大器插件,1 个水平舱(右)用于时基插件,插件组合决定测量系统功能。
关键控件:
显示相关:亮度控制(INTENSITY)调节轨迹亮度,读数亮度控制(READOUT INTENS)仅调节读数部分亮度(逆时针到底时读数系统失效),聚焦控制(FOCUS)获取清晰显示,光束定位器(BEAM FINDER)将轨迹压缩到刻度范围内。
电源与校准:电源开关(POWER)控制开关机,内部校准器(CALIBRATOR LOOP)提供 400mV(±1%)电压、4mA(±1%)电流的方波信号,频率为电源频率的 2 倍,用于校准和探头补偿。
外部接口:EXT INTENSITY INPUT 接口接收 Z 轴调制信号(DC 耦合,+5V 增强亮度,-5V 降低亮度,最大安全输入 ±50V,频率范围 DC 至 2MHz)。
(2)核心功能
显示模式:
交替模式(Alternate):时基插件显示开关弹出,随 CRT 每次扫描在激活插件 / 通道间切换,适合高频信号。
斩波模式(Chop):时基插件显示开关按下,以 100kHz 速率在通道间电子切换,适合低频信号或单次现象显示。
X-Y 操作:水平舱安装 5A 系列放大器或带放大器通道的 5B 系列时基插件接收 X 信号,垂直舱 5A 系列放大器接收 Y 信号,实现信号间对比显示。
光栅显示:左垂直舱和水平舱均安装 5B 系列时基插件,垂直舱扫速慢于水平舱,通过 EXT INTENSITY INPUT 实现亮度调制,可模拟电视显示。
读数系统:仅支持 5400 系列插件,在 CRT 上与模拟波形分时显示字母数字信息,每个插件读数占据固定位置(通道 1 在顶部分度,通道 2 在底部分度),最多显示 6 个读数(Option 3 可选 8 个),读数中断波形显示仅约 20 微秒 / 字符。
操作指南
(1)首次操作流程(共 19 步,关键步骤如下)
插件准备:左 / 中垂直舱安装 5A 系列放大器插件,水平舱安装 5B 系列时基插件。
电源连接:确认操作电压后,关闭电源开关,连接符合电压 / 频率要求的电源。
初始设置:
放大器插件:显示开(On),位置居中,CH1 Volts/Div 按需设,CH1 Variable Volts/Div 顺时针到底(Cal),CH1 Input Coupling 设 DC,模式设 CH1。
时基插件:显示交替(按钮弹出),位置居中,Main Sec/Div 设 5ms,Variable Seconds/Div 顺时针到底(Cal),Swp Mag 关闭(按钮弹出),Main Trig Level 逆时针到底,触发源选左(或中,若放大器在中舱),耦合设 Auto Trig、AC Coupl、+Slope,模式设 Main Sweep。
校准检查:连接探头 / 测试线到校准器,调节触发电平获稳定显示,检查波形幅度(4 分度)和周期(6 个完整周期,50Hz 电源为 5 个),异常需重新校准。
(2)基础测量方法
测量类型 关键步骤 计算公式 / 说明
AC 峰峰值电压 1. 垂直插件输入耦合设 Gnd,接信号后设 AC;2. Volts/Div 设至显示 5-6 垂直分度,Variable Volts/Div 在 Cal;3. 调节触发获稳定显示,测峰峰垂直分度;4. 结果 = 分度值 ×Volts/Div× 探头衰减比(若有) 示例:4.6 分度 ×5V/Div=23V
DC 瞬时电压 1. 垂直插件输入耦合设 Gnd,将轨迹定位到参考线(如底部分度,负电压用顶部);2. 接信号后设 DC,测参考线与测量点的垂直分度;3. 结果 = 分度值 ×Volts/Div× 探头衰减比(若有),极性由波形位置判断(+ 输入且波形在参考线上为正) 示例:4.6 分度 ×2V/Div=+9.2V
时间周期 1. 接信号,选 AC/DC 耦合,Volts/Div 设至显示 4 分度;2. 调节触发获稳定显示,Sec/Div 设至 1 周期显示 < 8 分度;3. 测两点水平分度(Variable Sec/Div 在 Cal);4. 结果 = 分度值 ×Sec/Div 示例:5 分度 ×0.1ms/Div=0.5ms
频率 1. 按时间周期测量方法获周期(T);2. 频率 = 1/T 示例:周期 0.5ms,频率 = 1/0.5ms=2kHz
上升时间(10%-90% 点) 1. 接信号,Volts/Div 及 Variable 设至显示 5 垂直分度;2. 调节触发获稳定显示,Sec/Div 设至 10%-90% 点显示 < 8 分度;3. 测两点水平分度;4. 结果 = 分度值 ×Sec/Div 示例:4 分度 ×1μs/Div=4μs

规格参数
1:垂直放大器规格
特性 性能要求 补充信息
带宽(6 分度参考) DC 至至少 85MHz(067-0680-00 校准夹具);DC 至至少 50MHz(校准 5A48) -
上升时间(6 分度参考) 7ns 或更少(校准 5A48) -
失真(6 分度参考) 5% 或更少(067-0680-00 校准夹具);4% 或更少(校准 5A48) -
位置对失真影响 ± 阶跃响应信号偏差不超过 ±5%(轨迹偏离刻度中心不超过 1 分度) -
垂直居中 刻度中心 ±0.5 分度内 -
延迟线长度 140ns -
斩波速率 50kHz(+50%-30%),3μs 导通,2μs 关断 -
交替速率 每两次扫描一次 -
表 2:水平放大器与 Z 轴放大器规格
放大器类型 特性 性能要求
水平放大器 带宽 DC 至至少 2MHz(8 分度信号参考);低频端至少 20kHz
Z 轴放大器 输入电压 +5V 将 CRT 光束从关转为开;-5V 将光束从开转为关
可用频率范围 DC 至 2MHz
输入阻抗(电阻) 10kΩ
表 3:电源、环境与物理规格
类别 特性 性能要求
电源 输入电压(RMS) 标称 100V、110V、120V、200V
输入频率 适配标准电源频率
输入功率 120V AC、60Hz 下最大 100W
保险丝 120V AC 用 1.25A 慢熔;240V AC 用 0.7A 慢熔
环境 工作温度 0°C 至 + 50°C
存储温度 -40°C 至 + 70°C
工作海拔 最高 15,000 英尺
存储海拔 最高 50,000 英尺
物理 重量 25lbs(11kg)
面板与外壳 阳极氧化铝面板(灰色乙烯基涂层框架),蓝色乙烯基涂层外壳
刻度盘 8×10 分度,1.22cm / 分度,标准白色内刻度线,可选黑色
安装与维护
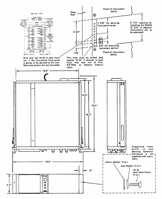
(1)机架安装
要求:适配 19 英寸标准机架(Universal、EIA、RETMA、Western Electric 孔位),垂直空间至少 5-1/4 英寸,上下需额外 1/4 英寸散热空间;正面导轨间距≥17-5/8 英寸(未攻丝)或 17-3/4 英寸(攻丝);后部与机架 enclosure 间隙≥2 英寸。
滑轨安装:滑轨分左右组件(标有 LH/RH),固定段装机架前后导轨,机箱段预装仪器,中间段连接两者;安装时需水平对齐,避免左右互换(会失效安全锁,导致仪器滑落),正面面板需用 10-32 螺丝固定(机架需对应孔位)。
维护:滑轨无需润滑,滑动部件深色涂层为永久润滑。
(2)插件安装与维护
安装:对齐插件上下插槽与舱内导轨,推入至锁定;可带电插拔,无需填满所有舱位,仅安装测量所需插件即可。
校准:显示单元按说明书校准后,垂直 / 水平增益标准化,插件可在舱间互换无需重新调整,但需检查插件自身基础校准以确保测量精度(参考插件手册)。
(3)安全规范
维修安全:仅合格人员维修,禁止单独维修(需配备急救人员);带电维修需避免触碰暴露连接 / 元件,拆面板、焊接或换元件前断开电源。
电源安全:电源需满足相线间及相线与地间 RMS 电压≤250V,电源线接地导体必须可靠接地。
性能检查
(1)测试设备要求(关键设备如下)
设备名称 性能要求 应用场景
直流电压表 量程 0-200V(精度 0.1%);0-3000V(精度 1%) 低压 / 高压电源检查与调整
校准发生器 幅度校准 10mV-1V(精度 ±0.25%,1MΩ 负载),方波输出 增益检查与调整
时标发生器 输出 5ns、10ns 标记(精度 ±1%) 扫描时序检查(5ns、10ns)
5A48 放大器插件 带宽 DC 至 500MHz,显示模式 CH1 垂直 / 水平系统调整
5B42 时基插件 扫速至少 10ns/div 扫描时序检查与调整
(2)关键检查项目
轨迹对齐:水平轨迹对齐中心水平刻度线,垂直轨迹对齐中心垂直刻度线,误差均≤0.1 分度。
几何形状:轨迹弯曲 / 倾斜≤0.1 分度,垂直与水平轨迹夹角 90°±0.7°。
垂直性能:
增益:输入 1kHz 方波,显示 5V 参考信号,垂直偏转 5 分度 ±0.15 分度(±3%)。
带宽:输入 50kHz 正弦波,显示 6 分度,升高频率至幅度降至 4.2 分度,频率需≥50MHz(5A48 插件)。
水平性能:
增益:输入 1kHz 方波,显示 5V 参考信号,水平偏转 5 分度 ±0.15 分度。
带宽:输入 50kHz 正弦波,显示 6 分度,升高频率至幅度降至 4.2 分度,频率需≥2MHz。
读数系统:双踪模式下,读数在 CRT 顶部 / 底部显示,无重叠,与 Volts/Div、Sec/Div 设置对应;CAL 控制逆时针旋转时,读数左侧显示 “>” 符号。
